GIPO design: Laboratorio di architettura

Progettiamo le vostre idee

“Arredare non significa fare scenografie, non significa fare belle immagini per le riviste; è piuttosto creare una qualità di vita, una bellezza che nutre l’anima”. (Albert Hadley)

 

Lo studio GIPO design da oltre 20 anni è specializzato nella progettazione di arredamento, complementi ed attrezzature commerciali su misura, con un continuo aggiornamento sulla qualità delle materie prime e delle tecniche di lavorazione per dare sempre un risultato di eccellenza al cliente finale.

Fornisce anche un servizio di consulenza di architettura d’interni per addetti ai lavori: geometri, ingegneri ed architetti che si occupano della realizzazione di nuovi locali commerciali o da ristrutturare e che prevedono l’allestimento di attività food e no-food.

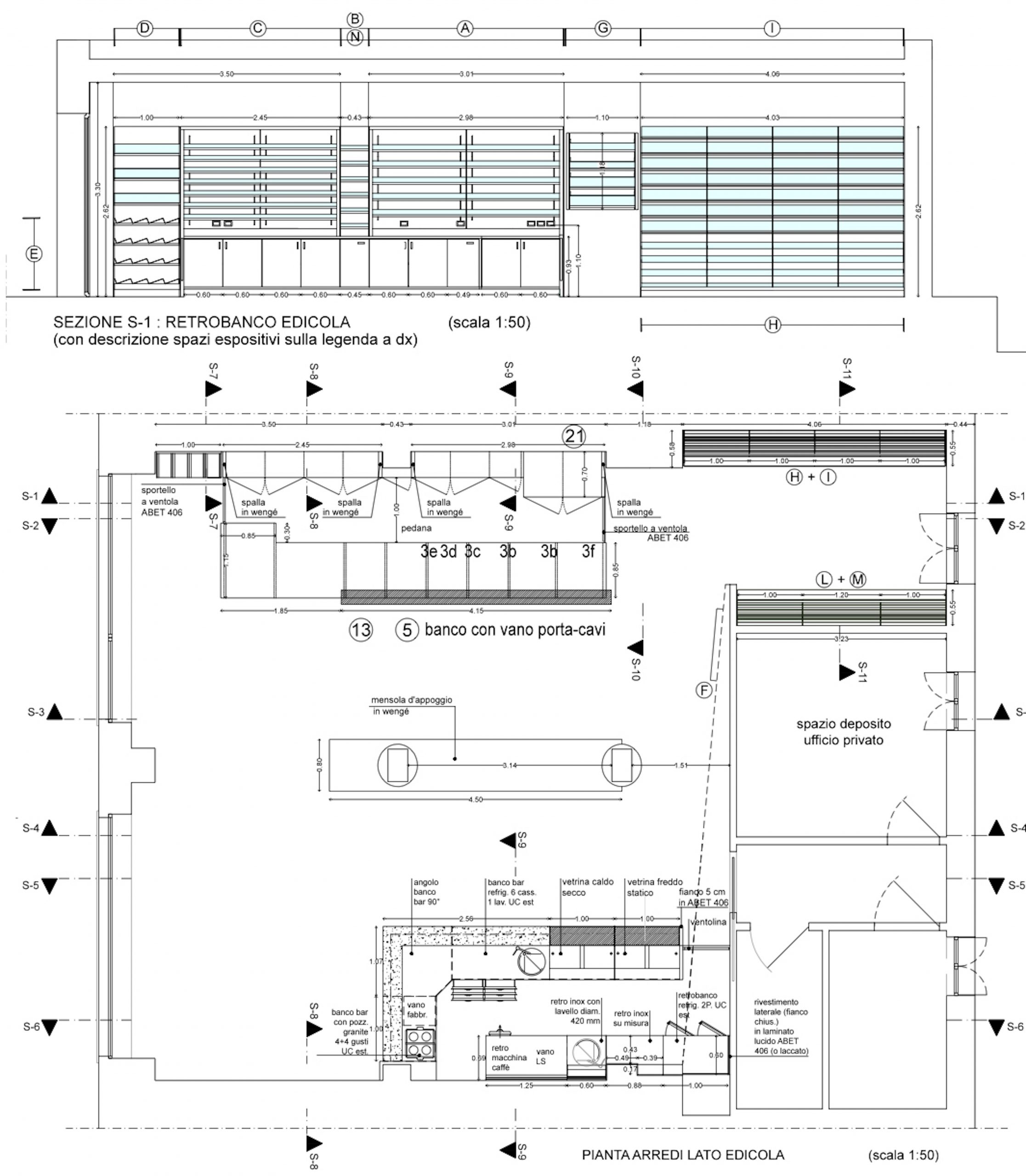
Cliente: F.lli Mirabella

Data: 2014

Attività: Edicola-bar

La nuova edicola-bar Eureka è il risultato di un’attività sinergica tra lo studio di progettazione dell’Arch. Giancarlo La Rosa e lo studio GIPO design. Un esempio di incontro tra la progettazione architettonica di un nuovo edificio realizzato con la formula “demolizione e ricostruzione” e la conseguente necessità di rielaborare in chiave moderna gli spazi interni di un’attività storica a Siracusa, l’edicola dei fratelli Mirabella, proprio di fronte alla tomba di Archimede

Per questo lavoro GIPO design ha messo a disposizione tutta l’esperienza progettuale nell’utilizzo di materiali dalla grande qualità e versatilità, come il Corian e i laminati Abet. Questo ha permesso di realizzare grandi banconi su misura, grazie anche al pregio del Corian che consente di saldare e levigare superfici con ampia soluzione di continuità senza alcuna giuntura visibile.

Venendo incontro alle molteplici necessità funzionali di una edicola-bar, il risultato finale è un design dalle geometrie semplici nelle forme e nei colori per uno spazio commerciale accogliente dinamico e luminoso.

Cliente: Giorgio Fede

Data: 2018

Categoria: Pasticceria

Modica è una cittadina della Sicilia orientale, all’interno del percorso del Val di Noto, il cui nome è entrato nell’olimpo dell’enogastronomia mondiale grazie alla bontà del suo cioccolato e della rinomata tradizione dolciaria.

Con oltre vent’anni di storia la pasticceria di Giorgio Fede è simbolo di un luogo che rinnova una grande tradizione, in costante dialogo con il territorio in cui nasce e quotidianamente si rinnova.

È sulla base di questi presupposti che lo studio GIPO design ha sviluppato un total design in sinergia con la 3 EFFE ARREDI srl (referente nella fornitura delle attrezzature tecnologiche).

Lo studio ha tenuto conto della reminescenza del passato, rispetto alle antiche pasticcerie di Modica con le forme del liberty dei primi anni del ‘900 e l’uso di materiali naturali, il legno massello e la pietra di Modica. Naturalmente il tutto rivisitato in chiave moderna, grazie a nuovi vetrinati prodotti da grandi aziende italiane per l’esposizione ed il mantenimento della pasticceria e del gelato (Tubs e Bellavue della Ifi) e all’utilizzo insieme al legno (colorazione originale dell’olmo) di materiali moderni come l’agglomerato di quarzo, acciaio inox e speciali laminati, utilizzati nelle zone sottoposte a maggior usura.

Il risultato finale è in linea con i concetti alla base del progetto, ovvero rievocare al presente e al futuro gli odori, i sapori e le sensazioni di un ambiente che riporta ad un passato dai grandi valori. 

GIPO design

  Laboratorio di architettura